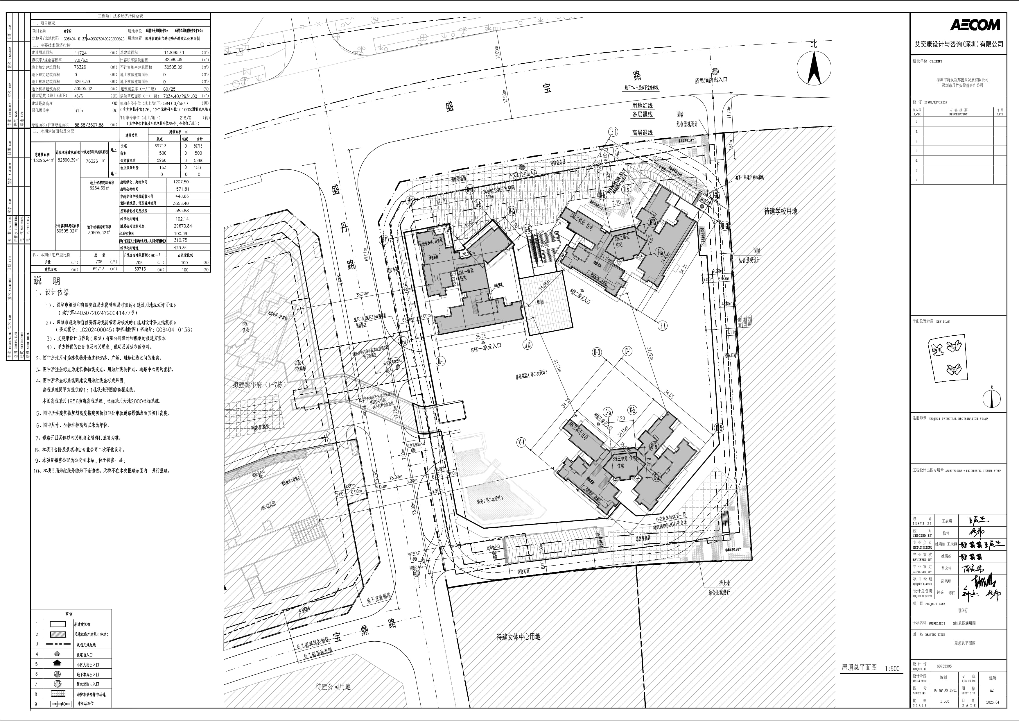
深圳市规划和自然资源局龙岗管理局关于公布南湾街道臻华府项目总平面图的公告
日期: 2025-05-08 来源:
深圳市丹竹头股份合作公司、深圳市特发新邦置业发展有限公司来文申报南湾街道臻华府项目的建设工程规划许可证核发,现已取得《深圳市建设工程规划许可证》(建字第4403072025GG0087568号、建字第4403072025GG0091568号)。
依据《中华人民共和国城乡规划法》相关规定,现对该项目总平面图予以公布。
特此公告。
附件:1.1-7栋总平面图(1-1)
2.1-7栋总平面图(1-2)
3.深圳市建设工程规划许可证(建筑类)(2-1)
4.深圳市建设工程规划许可证(建筑类)(2-2)
5.深圳市建设工程设计文件核查意见书24版(3-1)
6.深圳市建设工程设计文件核查意见书24版(3-2)
深圳市规划和自然资源局龙岗管理局
2025年5月8日
相关文档:
