深圳市规划和自然资源局龙岗管理局关于龙岗区公安分局规划确认的公示
日期: 2024-10-24 来源:
近日,我局受理了龙岗区公安分局规划确认事宜的申请,根据《广东省城乡规划条例》《关于加强房地产登记历史遗留问题处理工作的若干意见》(深府〔2010〕66号)等相关规定,现将本次规划确认内容予以公示,具体内容如下:
一、规划确认内容
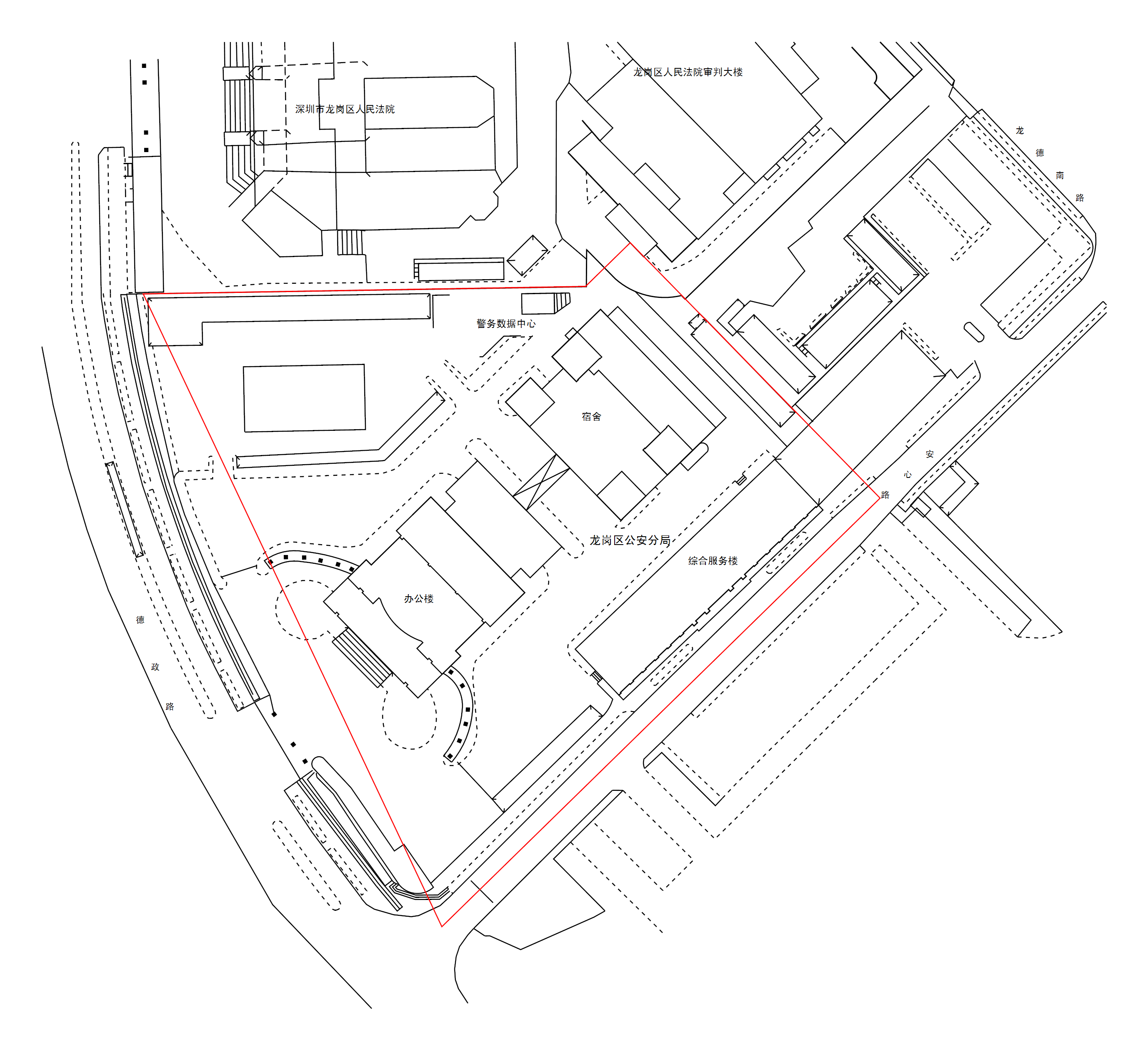
该项目位于龙岗区德政路6号,拟规划确认4栋建筑(其中1栋办公楼,地上17层,地下1层;1栋宿舍,地上6层;1栋综合服务楼,地上4层;1栋警务数据中心,地上2层), 总建筑面积28483.35平方米,计容积率建筑面积27124.09平方米,不计容积率建筑面积1359.26平方米(为地下室设备用房),规定建筑面积27124.09平方米(其中办公楼17076.23平方米、宿舍5564.9平方米、综合服务楼3789.12平方米、警务数据中心693.84平方米。
二、公示时间
公示期为10个自然日(2024年10月24日至2024年11月2日)。
三、公示地点
(一)深圳市规划和自然资源局龙岗管理局
地址:龙岗区龙城街道行政路2号建设大厦一楼大厅;
(二)项目现场
地址:龙岗区龙城街道德政路6号;
(三)网上展示
1.深圳市规划和自然资源局网站
网址:http://pnr.sz.gov.cn;
2.深圳市规划和自然资源局龙岗管理局网站
网址:http://pnr.sz.gov.cn/lg/。
四、意见反馈
公示期间如对该事项有意见或建议,请使用真实姓名及有效联系方式将意见通过邮寄或电子邮件反馈:
(一)邮寄。邮寄地址:深圳市龙岗区龙城街道行政路2号建设大厦812室;收件人:建筑设计科1105室,黄工;联系电话:0755-28916900;并在信封上注明“龙岗区公安分局公示意见”字样(日期以邮戳为准)。
(二)电子邮件。请将意见发至邮箱:laishh@pnr.sz.gov.cn,邮件标题请按“龙岗区公安分局公示意见+姓名(或单位名称)”格式填写。
公众意见征询截止日期为2024年11月2日。深圳市规划和自然资源局龙岗管理局将按相关规定对公众意见进行研究和处理。
特此公示。
附件:龙岗区公安分局总平面图
深圳市规划和自然资源局龙岗管理局
2024年10月24日
相关文档:
