深圳市规划和自然资源局龙岗管理局关于吉华街道迪平创意厂区项目总平面图修改的公示
日期: 2023-07-04 来源:
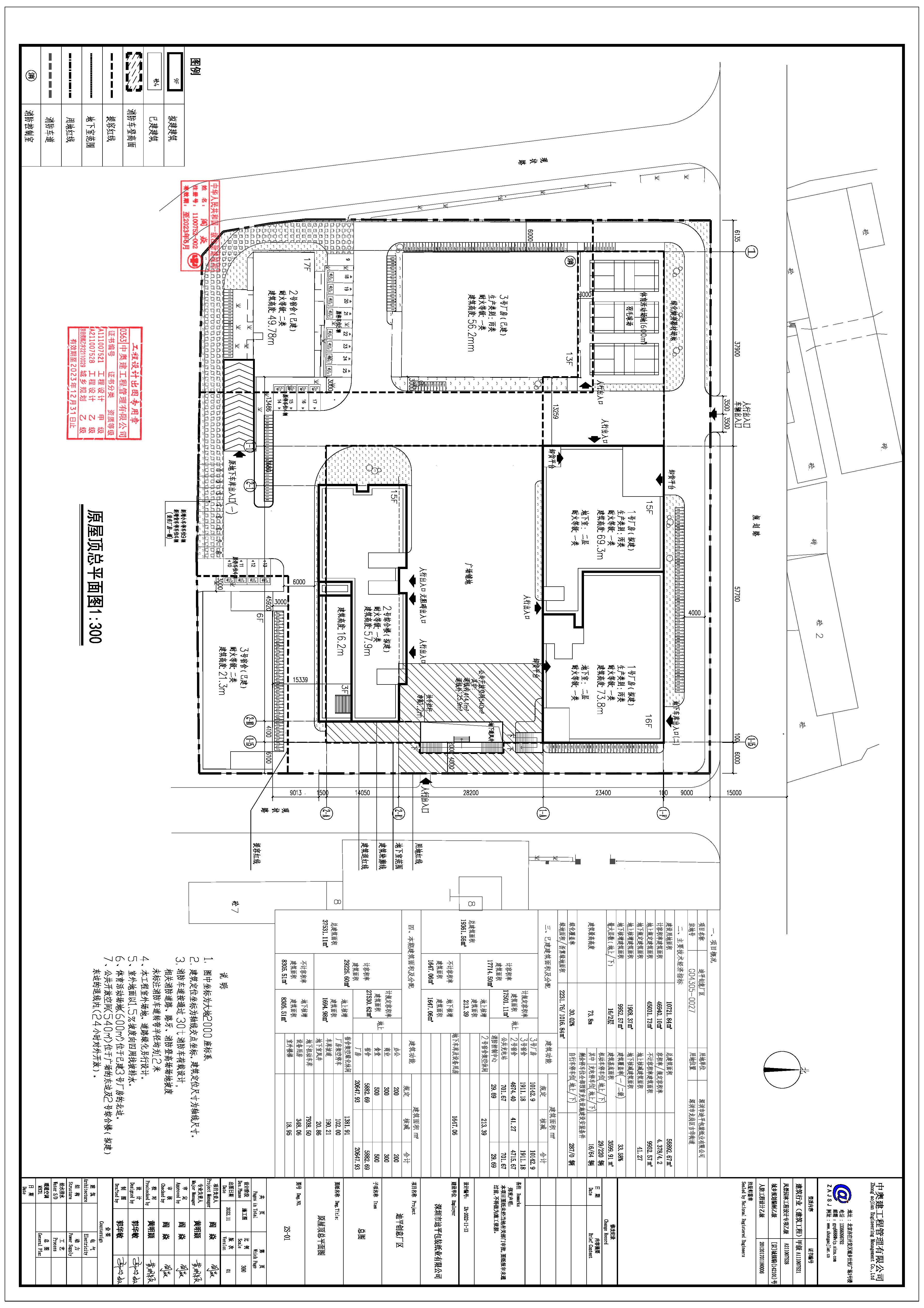
深圳市迪平包装纸业有限公司来文申请办理迪平创意厂区项目的建设工程规划许可变更,项目位于吉华街道,用地面积10721.84平方米,该项目于2022年12月12日取得深规土建许字LG-2022-0133号《建设工程规划许可证》。本次建设工程规划许可变更涉及总平面图修改,主要内容为:
1.主要经济技术指标调整;
2.地下室轮廓范围线外扩;
3.1号厂房屋面增加人防报警间。
以上修改内容详见云线圈注部分,修改后的各项技术指标等仍符合相关规划及规范要求。根据《中华人民共和国行政许可法》及《中华人民共和国城乡规划法》相关规定,现对该项目的屋顶总平面图修改内容予以公示,本公示内容和修改前后总平面图同时在深圳市规划和自然资源局网站(http://pnr.sz.gov.cn)及深圳市规划和自然资源局龙岗管理局大厅和网址(地址:龙岗区行政路2号建设大厦;网址:http://pnr.sz.gov.cn/lg/)、项目现场一并公示。公示期为10个工作日(2023年7月4日至2023年7月17日),公示期间如对该项目屋顶总平面图修改有任何意见和建议,请在公示期内使用真实姓名及联系方式以书面形式反馈至深圳市规划和自然资源局龙岗管理局。公示期满无异议,深圳市规划和自然资源局龙岗管理局将按规定办理批准手续。
特此公示。
附件:1.修改前总平面图
2.修改后总平面图
深圳市规划和自然资源局龙岗管理局
2023年7月4日
(联系人:赖工;联系电话0755-28918639)
相关文档:
