深圳市规划和自然资源局龙岗管理局关于紫薇花园南2栋1单元加装电梯项目变更工规和总平面图修改事宜的公示
日期: 2023-06-09 来源:
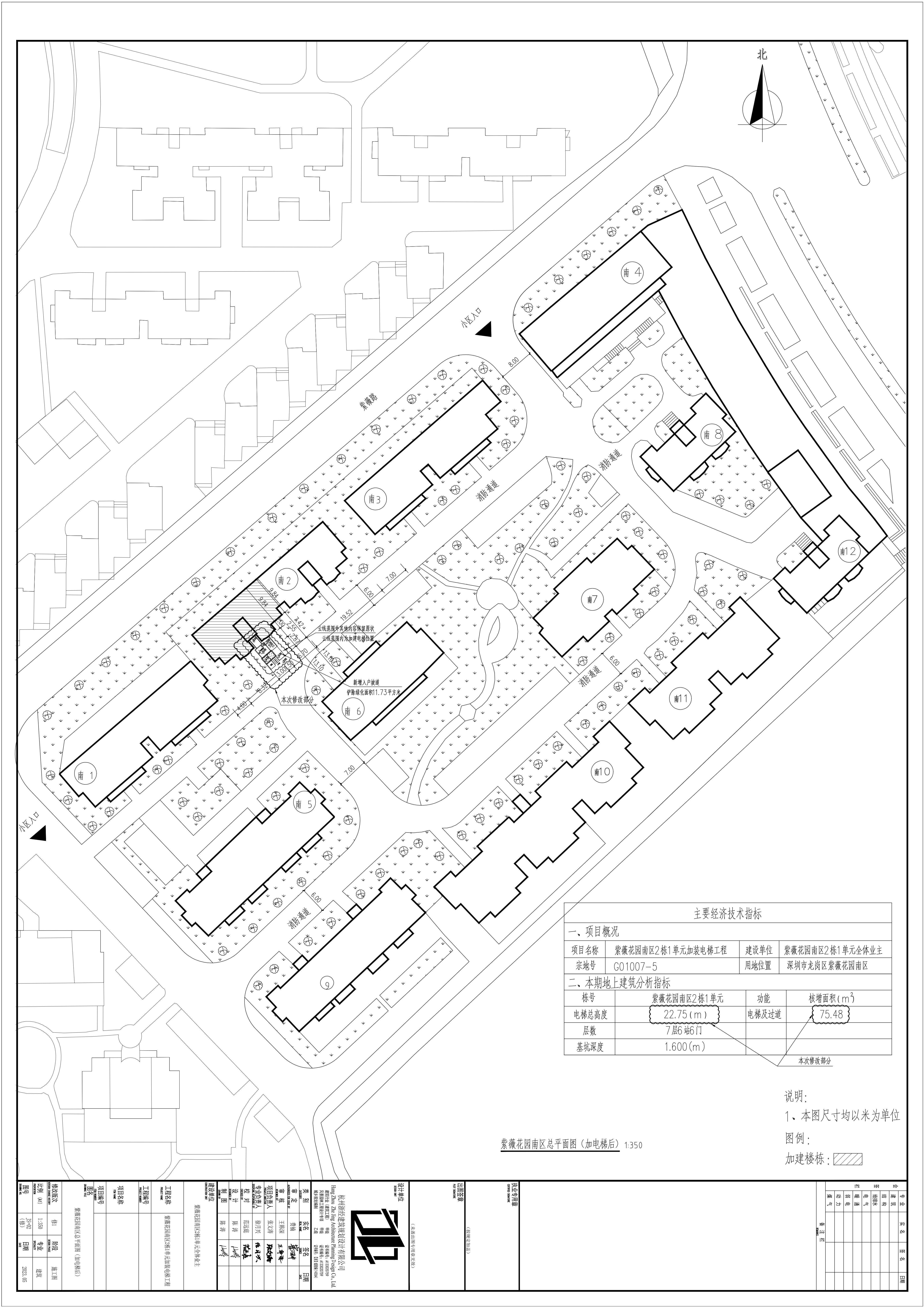
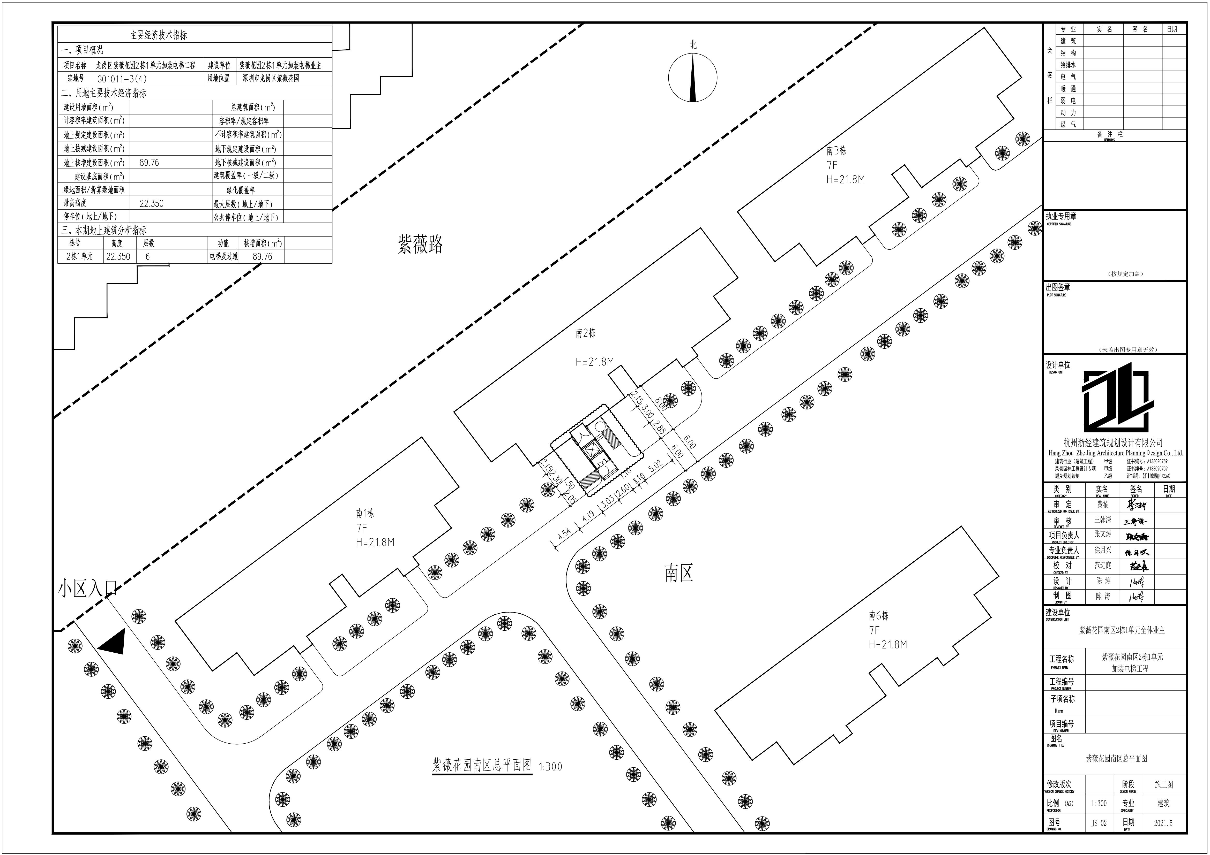
紫薇花园南2栋1单元业主申请紫薇花园南2栋1单元加装电梯项目施工图纸修改。紫薇花园南2栋1单元加装电梯项目位于龙城街道(宗地号:G01007-5号),于2021年7月26日取得《建设工程规划许可证》【深规划资源建许LG-2021-0091号】。本次涉及总平面修改,主要内容为(详情如附图云线所示):
1.一层电梯、楼栋出入口增加雨蓬;新增入户通道,铲除绿化11.73平方米;
2.各层连廊宽度减少,尺寸由原2.6×2.64米改为1.65×2.7米;
3.电梯总高度由原22.35米改为22.75米;
4.变更深规划资源建许字LG-2021-0091号《建设工程规划许可证》宗地号及备注中相关指标(具体指标详见总平图主要技术经济指标表)。
本次修改内容满足《深圳市既有住宅加装电梯管理规定》的要求,并取得本单元所有业主的同意。
现根据《中华人民共和国城乡规划法》相关规定予以公示,公示期为10个工作日(2023年6月9日至2023年6月25日)。本公示自发布之日起在项目现场(地址:龙岗区龙城街道紫薇花园南2栋1单元)、深圳市规划和自然资源局门户网站(http://pnr.sz.gov.cn)及深圳市规划和自然资源局龙岗管理局一楼大厅和网站(地址:龙岗区中心城行政路2号,网址:http://pnr.sz.gov.cn/lg)同时公示。公示期间,如对该项目上述变更内容有异议,请使用真实姓名及有效联系方式通过书面形式与深圳市规划和自然资源局龙岗管理局联系,公示期满无异议,将按规定办理相关手续。
特此公示。
附件:1.修改前总平面图
2.修改后总平面图
深圳市规划和自然资源局龙岗管理局
2023年6月9日
联系人:戴工,电话(0755)28916910,传真(0755)28910030
相关文档:
