 无障碍    长者助手 我的收藏   收藏
政府信息公开 规章库

深圳市规划和自然资源局政府信息公开

索引号: 11440300MB2C94128A/2021-01815 分类:
发布机构: 深圳市规划和自然资源局 成文日期: 2021-08-10
名称: 深圳市规划和自然资源局坪山管理局关于坪山高新区综合服务中心项目(宗地号:G12312-8045)总平面图及外立面修改事宜的公示
文号: 发布日期: 2021-08-10
主题词:
【打印】 【字体:    

深圳市规划和自然资源局坪山管理局关于坪山高新区综合服务中心项目(宗地号:G12312-8045)总平面图及外立面修改事宜的公示

发布日期:2021-08-10  浏览次数:-

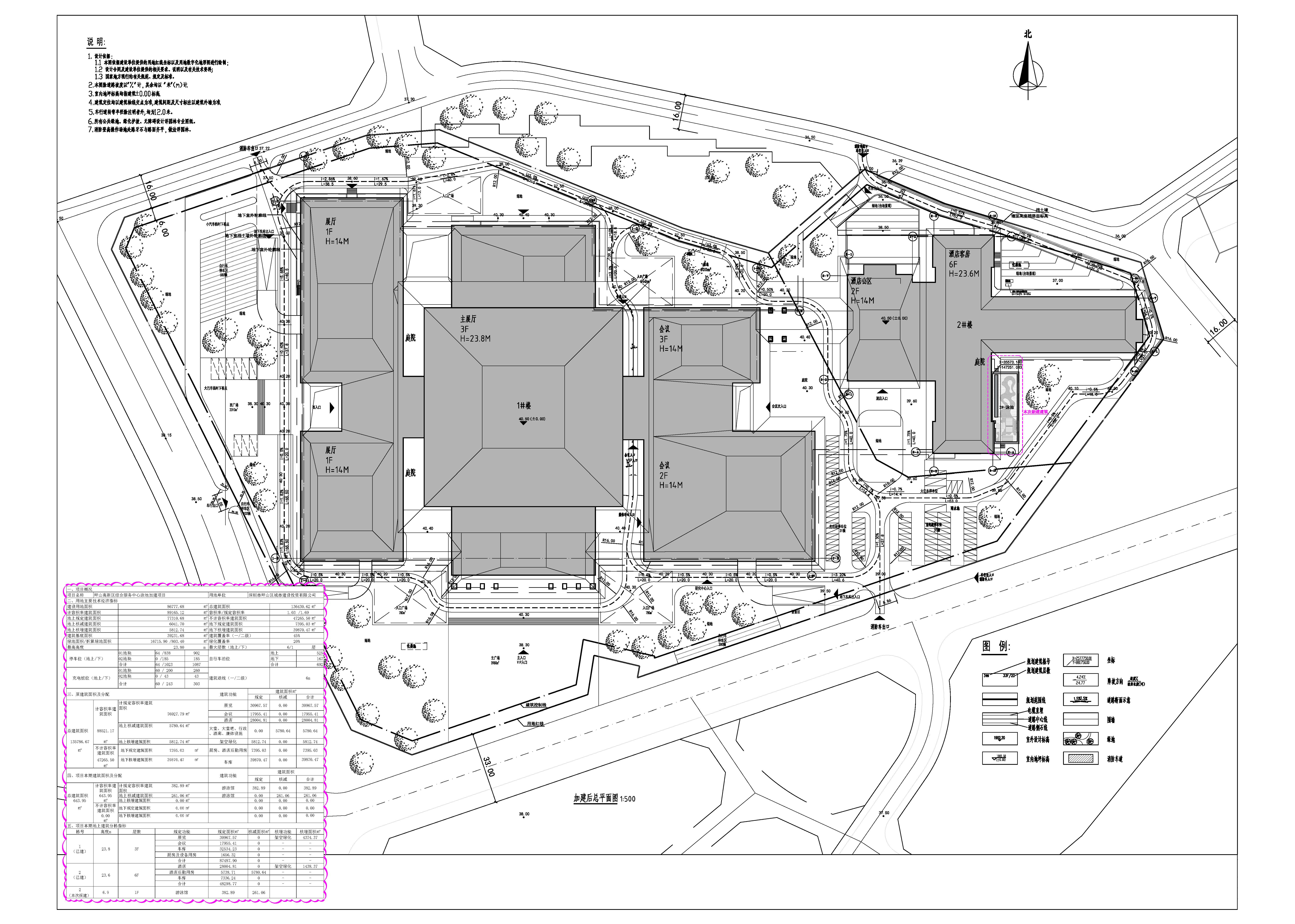
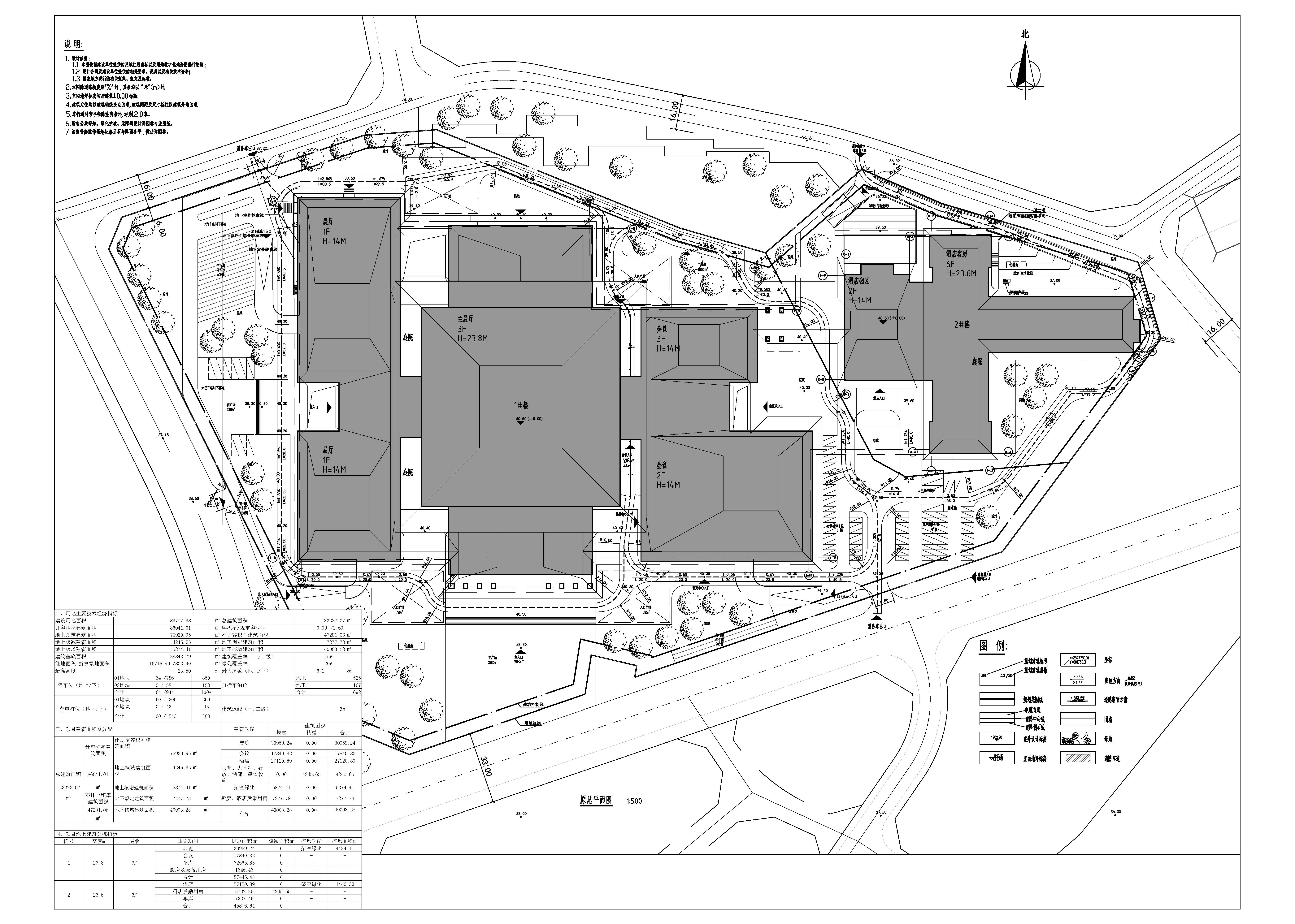
  深圳市坪山区城市建设投资有限公司开发建设的坪山高新区综合服务中心项目(宗地号:G12312-8045)位于坪山区瑞景路与玉田路交汇处以东,总用地面积86777.68㎡。该项目已建建筑共2栋,现将在2栋酒店东南侧加建游泳池,项目总平面图及外立面产生相应变化。根据《中华人民共和国行政许可法》《中华人民共和国城乡规划法》和《深圳市城市规划条例》等有关规定,现将主要修改内容予以公示如下:

  2栋东南侧加建游泳池,地上一层,建筑高度7.2m,总建筑面积为643.95㎡,其中规定建筑面积382.89㎡,核减建筑面积261.06㎡。

  以上修改为云线圈注部分,修改后本项目各项指标均符合相关规划要求。

  本次公示分为集中展示和网上展示两种方式。集中展示地点为:深圳市坪山区龙坪路6号(深圳市规划和自然资源局坪山管理局一楼大厅);坪山高新区综合服务中心项目施工现场。网上展示地址为:深圳市规划和自然资源局网站:http://pnr.sz.gov.cn;深圳市规划和自然资源局坪山管理局网站:http://pnr.sz.gov.cn/ps/。

  公示时间为期10个工作日,自2021年8月10日至2021年8月23日止。公示期间,如对该事宜有任何意见或建议,请在上述展示地点及展示网站领取或下载“公众意见征询表”进行填写,并将填写好的“公众意见征询表”寄往深圳市规划和自然资源局坪山管理局。截止日期为2021年8月23日(如邮寄,以邮戳日期为准)。公示期满无异议,深圳市规划和自然资源局坪山管理局将按规定办理相关手续。

  热忱欢迎广大市民和社会各界人士踊跃参与,并提出相关意见或建议。

  特此公示。

  联系人:贺工

  联系电话:0755-28297924

  联系地址:深圳市坪山区龙坪路6号(深圳市规划和自然资源局坪山管理局)

  邮政编码:518118

  附件:1.坪山高新区综合服务中心项目修改前总平面图

  2.坪山高新区综合服务中心项目修改后总平面图

  3.坪山高新区综合服务中心项目修改前效果图

  4.坪山高新区综合服务中心项目修改后效果图

  5.公众意见征询表

深圳市规划和自然资源局坪山管理局

2021年8月10


附件:

1.1.坪山高新区综合服务中心项目修改前总平面图.jpg

2.2.坪山高新区综合服务中心项目修改后总平面图.jpg

3.3.坪山高新区综合服务中心项目修改前效果图.jpg

4.4.坪山高新区综合服务中心项目修改后效果图.jpg

5.5.公众意见征询表.docx