 无障碍    长者助手 我的收藏   收藏
政府信息公开 规章库

深圳市规划和自然资源局政府信息公开

索引号: 11440300MB2C94128A/2026-00802 分类:
发布机构: 深圳市规划和自然资源局 成文日期: 2026-03-26
名称: 深圳市规划和自然资源局龙岗管理局关于颐安智汇大厦项目总平面图修改的公示
文号: 发布日期: 2026-03-27
主题词:
【打印】 【字体:    

深圳市规划和自然资源局龙岗管理局关于颐安智汇大厦项目总平面图修改的公示

发布日期:2026-03-27  浏览次数:-

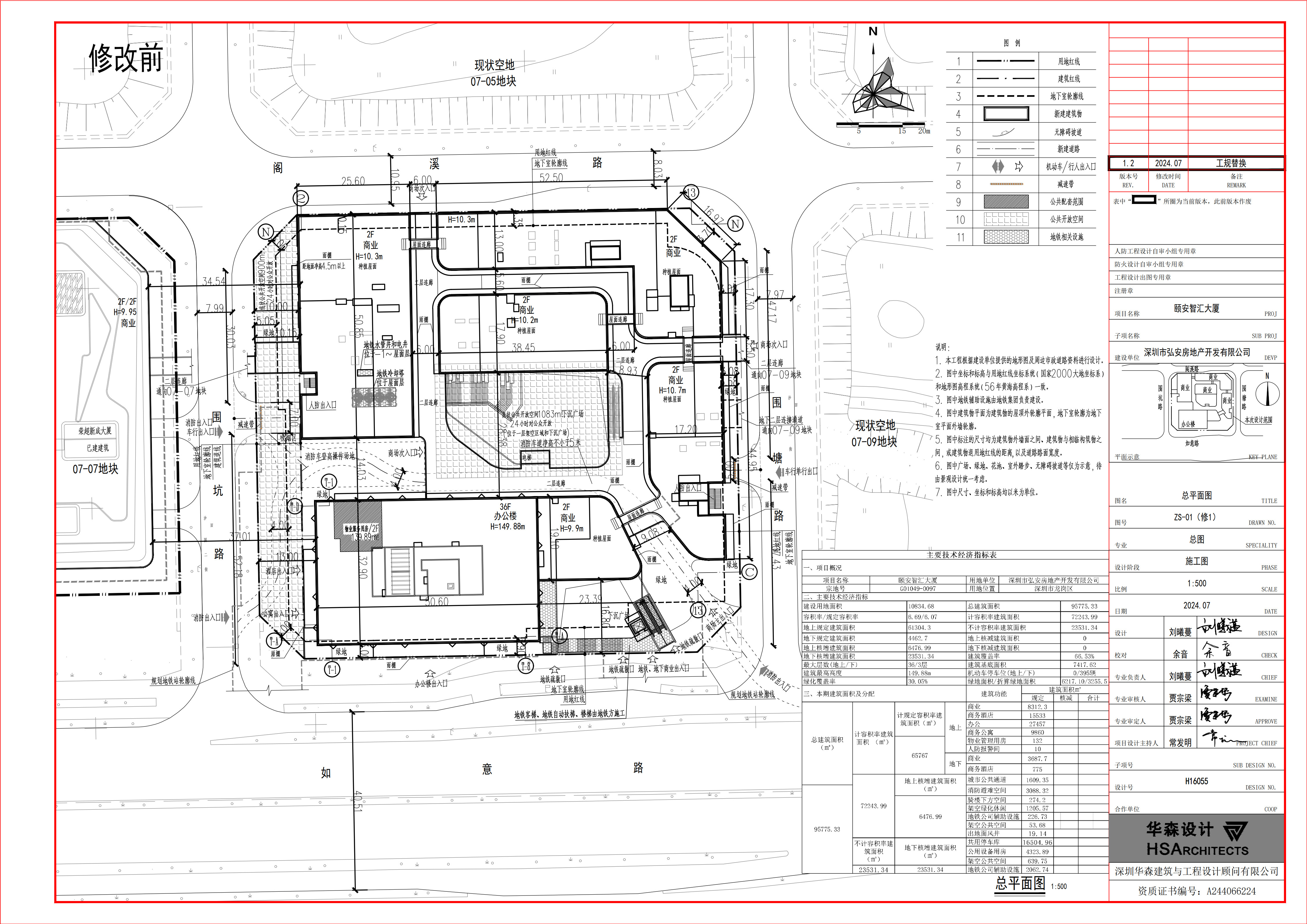
  颐安智汇大厦项目用地位于龙岗区龙城街道体育新城,宗地号为G01049-0097。该项目于2024年10月12日取得《建设工程规划许可证》(建字第4403072024GG0213496(改1)号)。根据《中华人民共和国城乡规划法》等相关规定,我局对颐安智汇大厦项目总平面图修改情况公示如下:

  一、主要修改内容

  (一)通向07-07地块及通向07-09地块的二层连廊增加栏杆、混凝土反坎,同步删除红线外挑出部分。

  (二)三层屋面连廊圆角调整为直角。

  (三)取消通向07-09地块的地下二层连接通道示意。

  二、公示时间

  2026年3月27日至2026年4月10日(10个工作日)

  三、公示渠道

  (一)网站公示

  1.深圳市规划和自然资源局门户网站

  http://pnr.sz.gov.cn/

  2.深圳市规划和自然资源局龙岗管理局门户网站

  http://pnr.sz.gov.cn/lg/

  (二)实地公示

  1.深圳市规划和自然资源局龙岗管理局

  地址:深圳市龙岗区龙城街道行政路2号建设大厦

  2.项目现场

  地址:龙岗区龙城街道颐安智汇大厦项目现场大门

  四、意见反馈方式

  公示期间,任何单位、组织和个人均可就公示内容提出书面意见或建议,个人提交反馈意见的应当提供真实姓名(须由提交人签名)、有效身份证明复印件、住址及联系方式,单位或组织提交反馈意见的应当加盖公章、提交单位法定代表人、委托代理人的有效身份证明复印件并注明联系人及联系方式。请通过以下渠道书面反馈:

  (一)邮寄。邮寄地址:深圳市龙岗区龙城街道行政路2号建设大厦812室;收件人:建筑设计科1105室,吴工;联系电话:0755-28918639;并在信封上注明“颐安智汇大厦项目总平面图修改公示反馈意见”字样(日期以邮戳为准);

  (二)电子邮件。请将意见发送至邮箱:laishh@pnr.sz.gov.cn,邮件标题请按照“颐安智汇大厦项目总平面图修改公示反馈意见+姓名(或单位名称)”格式填写。

  公众意见征询截止后,我局将按照相关规定对公众意见进行认真研究和处理后,按程序审批。

  特此公示。

  附件:1.项目修改前总平面图

  2.项目修改后总平面图

  深圳市规划和自然资源局龙岗管理局

  2026年3月26日


附件:

1.项目修改前总平面图.jpg

2.项目修改后总平面图.jpg