颐安都会中央花园(六区)[G01063-0261]项目用地位于龙岗区园山街道红棉路与荷风路交会处,宗地号为G01063-0261。经审查,我局同意核发该项目的《建设工程规划许可证》。
根据《中华人民共和国城乡规划法》相关规定,现将本次核发的《建设工程规划许可证》及总平面图予以公布。
特此通告。
附件:1.建设工程规划许可证
2.建设工程设计文件核查表
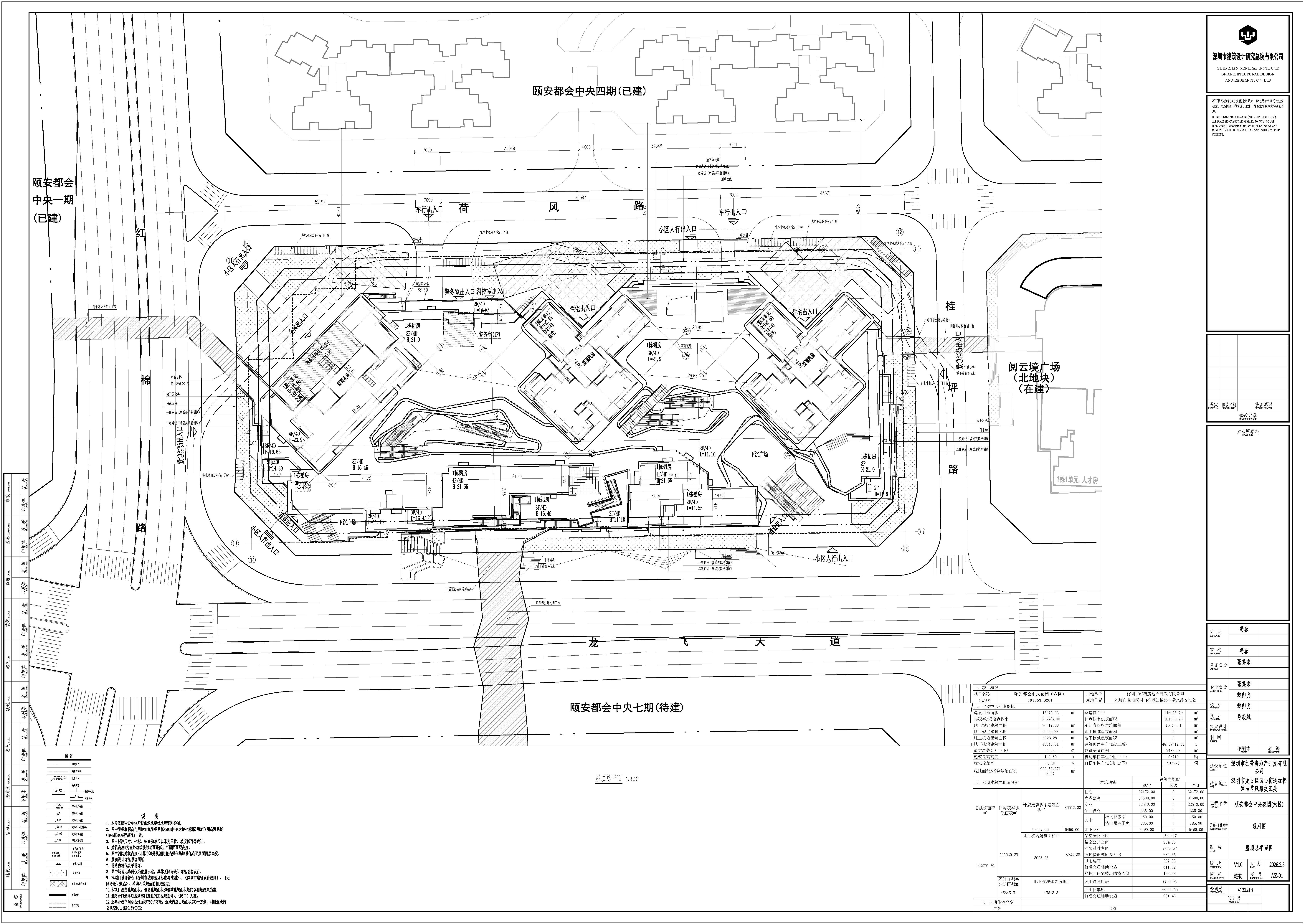
3.项目总平面图
深圳市规划和自然资源局龙岗管理局
2026年2月26日
附件:
| 索引号: | 11440300MB2C94128A/2026-00483 | 分类: | |
| 发布机构: | 深圳市规划和自然资源局 | 成文日期: | 2026-02-26 |
| 名称: | 深圳市规划和自然资源局龙岗管理局关于公布颐安都会中央花园(六区)[G01063-0261]项目《建设工程规划许可证》及总平面图的通告 | ||
| 文号: | 发布日期: | 2026-02-27 | |
| 主题词: | |||
颐安都会中央花园(六区)[G01063-0261]项目用地位于龙岗区园山街道红棉路与荷风路交会处,宗地号为G01063-0261。经审查,我局同意核发该项目的《建设工程规划许可证》。
根据《中华人民共和国城乡规划法》相关规定,现将本次核发的《建设工程规划许可证》及总平面图予以公布。
特此通告。
附件:1.建设工程规划许可证
2.建设工程设计文件核查表
3.项目总平面图
深圳市规划和自然资源局龙岗管理局
2026年2月26日
附件:
主办单位:深圳市规划和自然资源局 联系方式:0755-12345
粤公网安备44030402002979号
粤ICP备10039728-6 网站标识码:4403000033网络支持 IPv6 网络