 无障碍    长者助手 我的收藏   收藏
政府信息公开 规章库

深圳市规划和自然资源局政府信息公开

索引号: 11440300MB2C94128A/2025-00823 分类:
发布机构: 深圳市规划和自然资源局 成文日期: 2025-04-02
名称: 深圳市规划和自然资源局龙岗管理局关于公布安居麒龙苑项目(G08410-0060号宗地)总平面图的公告
文号: 发布日期: 2025-04-03
主题词:
【打印】 【字体:    

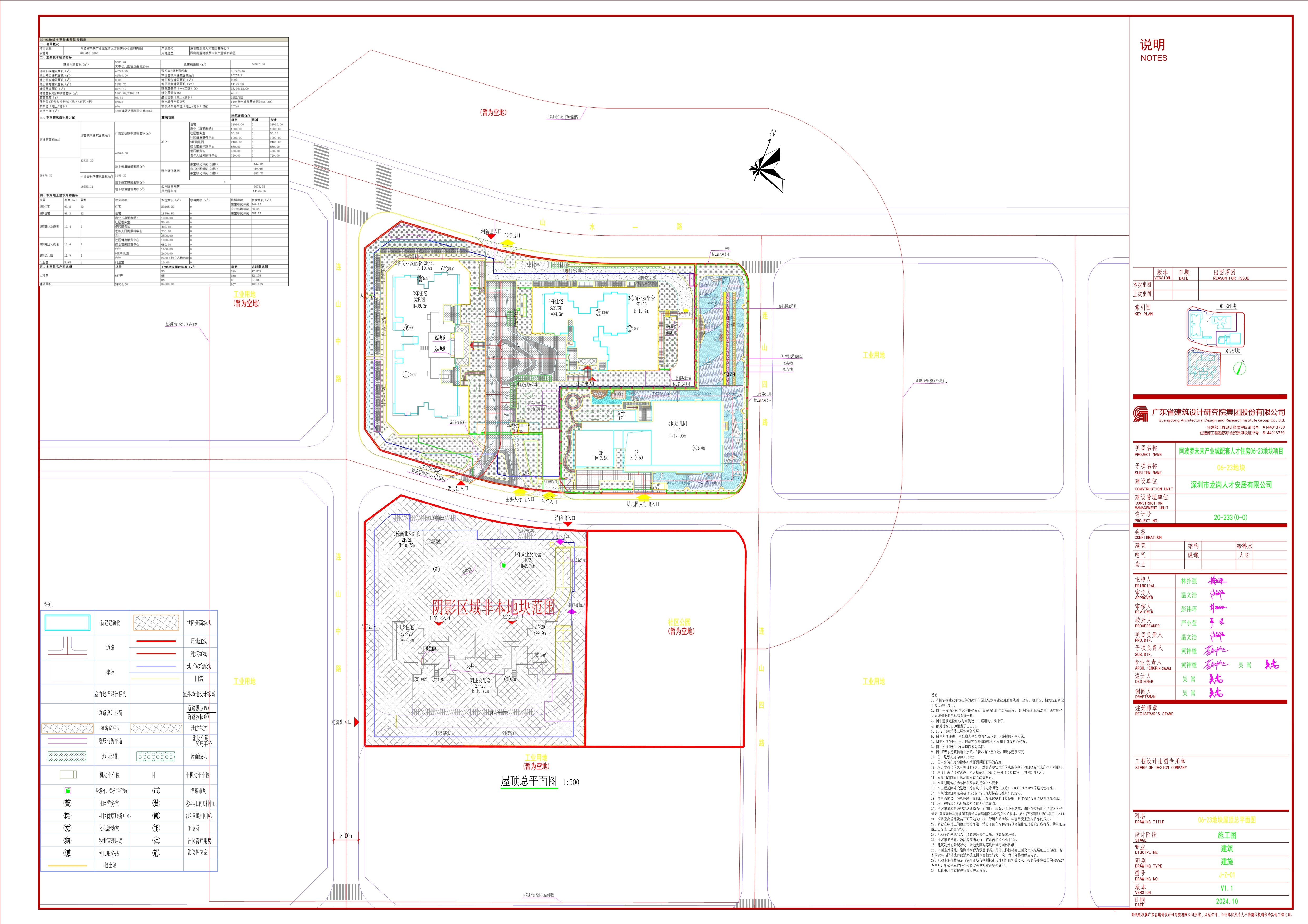
深圳市规划和自然资源局龙岗管理局关于公布安居麒龙苑项目(G08410-0060号宗地)总平面图的公告

发布日期:2025-04-03  浏览次数:-

  深圳市龙岗安居有限公司向我局申请安居麒龙苑项目(G08410-0060号宗地)的建设工程规划许可证核发,现已取得建字第4403072025GG0052590号《建设工程规划许可证》。

  依据《中华人民共和国城乡规划法》相关规定,现对该项目建字第4403072025GG0052590号《建设工程规划许可证》及总平面图予以公布。

  特此公告。

  附件:1.项目总平面图

  2.建字第4403072025GG0052590号《深圳市建设工程规划许可证》

  3.深规划资源设施字LG20250091号《深圳市建设工程设计文件核查表》

  深圳市规划和自然资源局龙岗管理局 

  2025年4月2日


附件:

1.项目总平面图.jpg

2.建字第4403072025GG0052590号《深圳市建设工程规划许可证》.pdf

3.深规划资源设施字LG20250091号《深圳市建设工程设计文件核查表》.pdf