 无障碍    长者助手 我的收藏   收藏
政府信息公开 规章库

深圳市规划和自然资源局政府信息公开

索引号: 11440300MB2C94128A/2024-02126 分类:
发布机构: 深圳市规划和自然资源局 成文日期: 2024-09-13
名称: 深圳市规划和自然资源局龙岗管理局关于骏商科技广场项目总平面图修改的公示
文号: 发布日期: 2024-09-13
主题词:
【打印】 【字体:    

深圳市规划和自然资源局龙岗管理局关于骏商科技广场项目总平面图修改的公示

发布日期:2024-09-13  浏览次数:-

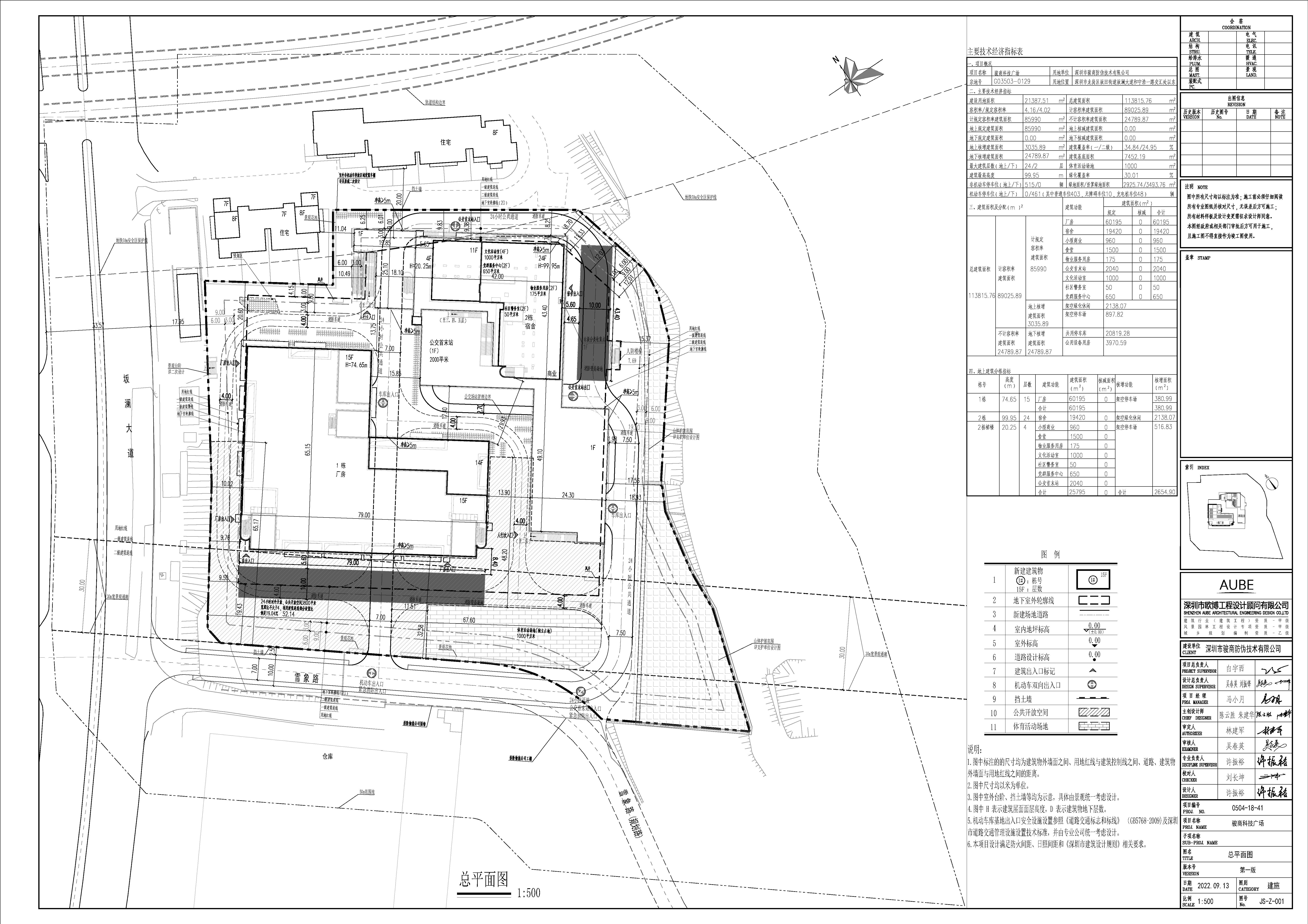
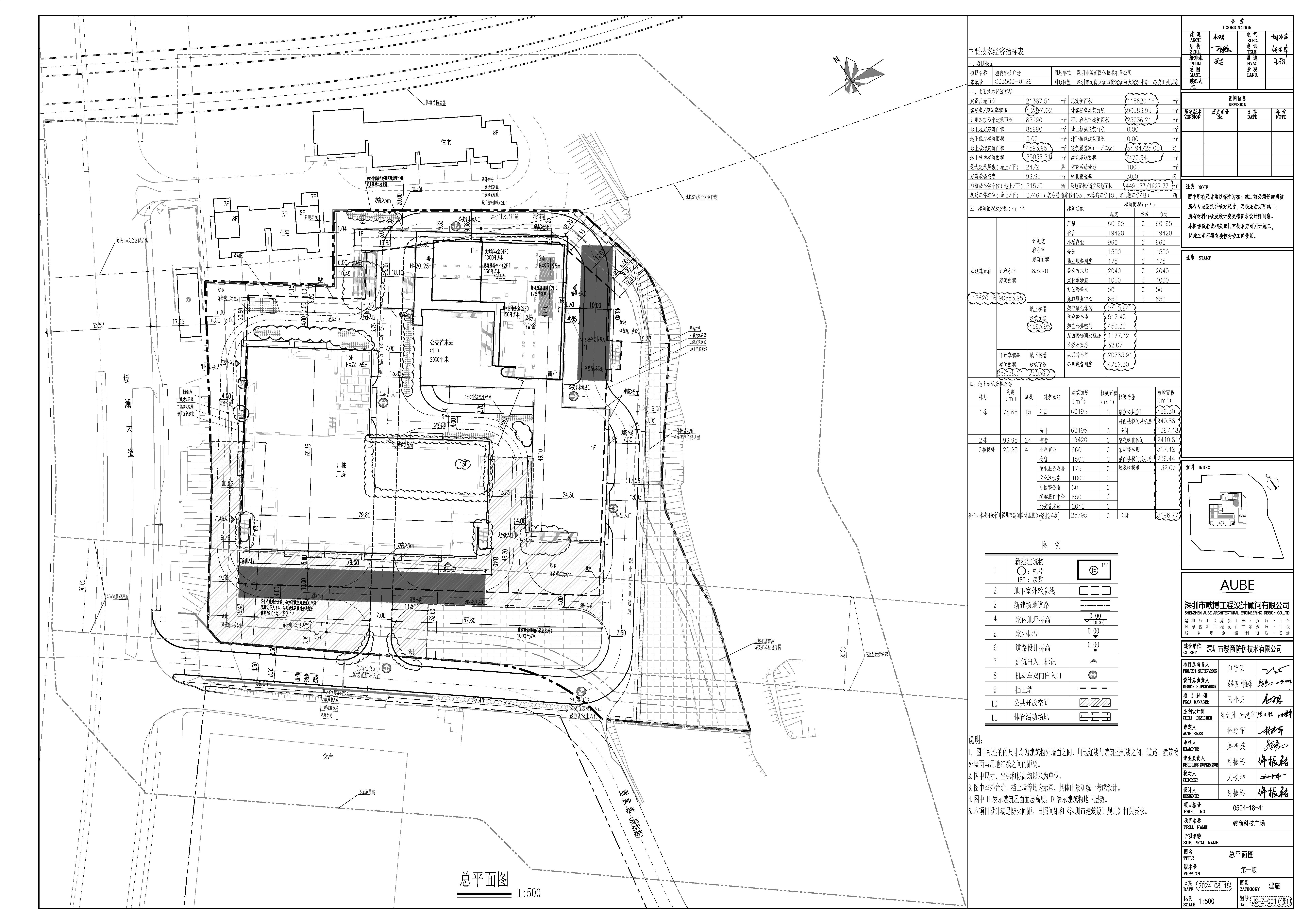
  深圳市骏商防伪技术有限公司来文申请办理骏商科技广场项目的建设工程规划许可变更,项目位于坂田街道,用地面积21387.51平方米,于2022年9月28日取得深规划资源建许字LG-2022-0109号《建设工程规划许可证》。本次申请修改内容涉及已批总平面图相关内容调整(详见云线圈注部分)。

  一、修改内容

  (一)1栋厂房建筑轮廓调整,东北角局部增加一层补全面积,整体修改为15层;

  (二)用地西南侧机动车出入口转弯半径加大;

  (三)绿化范围,非机动车停车位范围调整;

  技术经济指标表中数据相应修改,修改后的各项技术指标等仍符合相关规划及规范要求。

  二、公示日期

  现根据《中华人民共和国城乡规划法》相关规定予以公示,公示期为10个工作日(2024年9月13日至2024年9月27日)。

  三、 公示地点

  (一)深圳市规划和自然资源局龙岗管理局

  地址:深圳市龙岗区龙城街道行政路2号建设大厦一楼大厅

  (二)项目现场

  地址:深圳市龙岗区坂田街道坂澜大道和中浩一路交会处

  (三)网上展示

  1.深圳市规划和自然资源局网站

  网址:http://pnr.sz.gov.cn

  2.深圳市规划和自然资源局龙岗管理局网站

  网址:http://pnr.sz.gov.cn/lg/

  四、意见反馈

  公示期间如对该事项有意见或建议,请使用真实姓名及有效联系方式将意见通过邮寄或电子邮件反馈:

  (一)邮寄。邮寄地址:深圳市龙岗区龙城街道行政路2号建设大厦812室;收件人:建筑设计科1105室,赖工;联系电话:0755-28918132;并在信封上注明“骏商科技广场项目公示意见”字样(日期以邮戳为准)。

  (二)电子邮件。请将意见发至邮箱:laishh@pnr.sz.gov.cn,邮件标题请按“骏商科技广场项目公示意见+姓名(或单位名称)”格式填写。

  公众意见征询截止日期为2024年9月27日。深圳市规划和自然资源局龙岗管理局将按相关规定对公众意见进行研究和处理。

  特此公示。    

  附件:1.修改前总平面图      

  2.修改后总平面图

  深圳市规划和自然资源局龙岗管理局

  2024年9月13日


附件:

1.修改前总平面图.jpg

2.修改后总平面图.jpg