当前位置: 宝安管理局 > 公告公示

深圳市规划和自然资源局宝安管理局关于鹏鼎第二园区(二期)总平面图修改公示的通告

日期: 2022-07-19    来源:

 

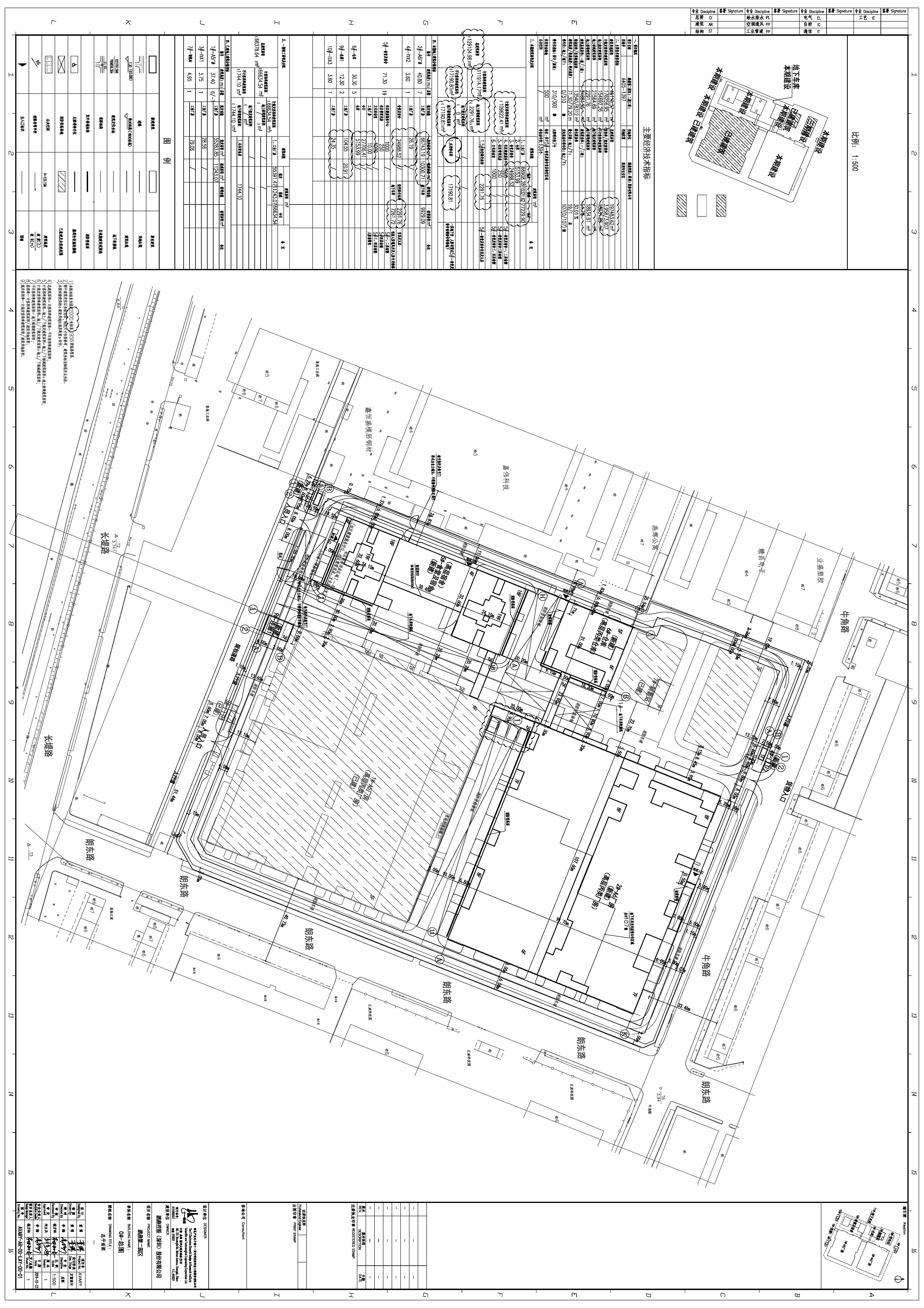
  鹏鼎控股(深圳)股份有限公司的“鹏鼎第二园区”二期工程,项目用地位于松岗街道,宗地号A405-1397,现来文申请总平面图修改。

  一、主要修改内容如下(详见图中云线圈注部分):

  (一)坐标系调整为2000国家大地坐标系;

  (二)2#厂房与1#厂房连接处连廊层数由2层调整至3层;

  (三)结合预测绘数据调整规定面积,“厂房”由76136.19㎡(规定66181.79㎡/核减9954.40㎡)调整为77229.90㎡(规定66908.28㎡/核减10321.62㎡),“仓库”由5300㎡调整为5153.99㎡,“宿舍及食堂”由25000㎡调整为24988.52㎡,地上核增面积“架空绿化休闲”由2319.84㎡调整为2291.76㎡,地下核增面积“地下停车库”更正为“共用停车库”面积由17187.79㎡调整为17190.81㎡,经济技术指标表其他指标相应调整。

  二、经核查,修改后各项指标仍符合规划要求。

  三、根据《中华人民共和国城乡规划法》有关规定,现对该项目总平面图的修改予以公示(具体修改内容到以下网站查询),公示期为10个工作日(2022年7月19日至2022年8月1日)。在公示期内,如对该项目的总平面图有意见和建议,请使用真实姓名及联系方式与深圳市规划和自然资源局宝安管理局联系。

  深圳市规划和自然资源局(http://pnr.sz.gov.cn)

  深圳市规划和自然资源局宝安管理局(http://pnr.sz.gov.cn/ba/)

  联系人:陈工,联系电话:27812824,传真:27802564

  附件:屋顶总平面图

深圳市规划和自然资源局宝安管理局

2022年7月19日

相关文档:

附件:屋顶总平面图.jpg


分享到:
 --