深圳市规划和自然资源局宝安管理局关于公布安岭雅居项目《建设工程规划许可证》及总平面图的通告
日期: 2025-04-04 来源:
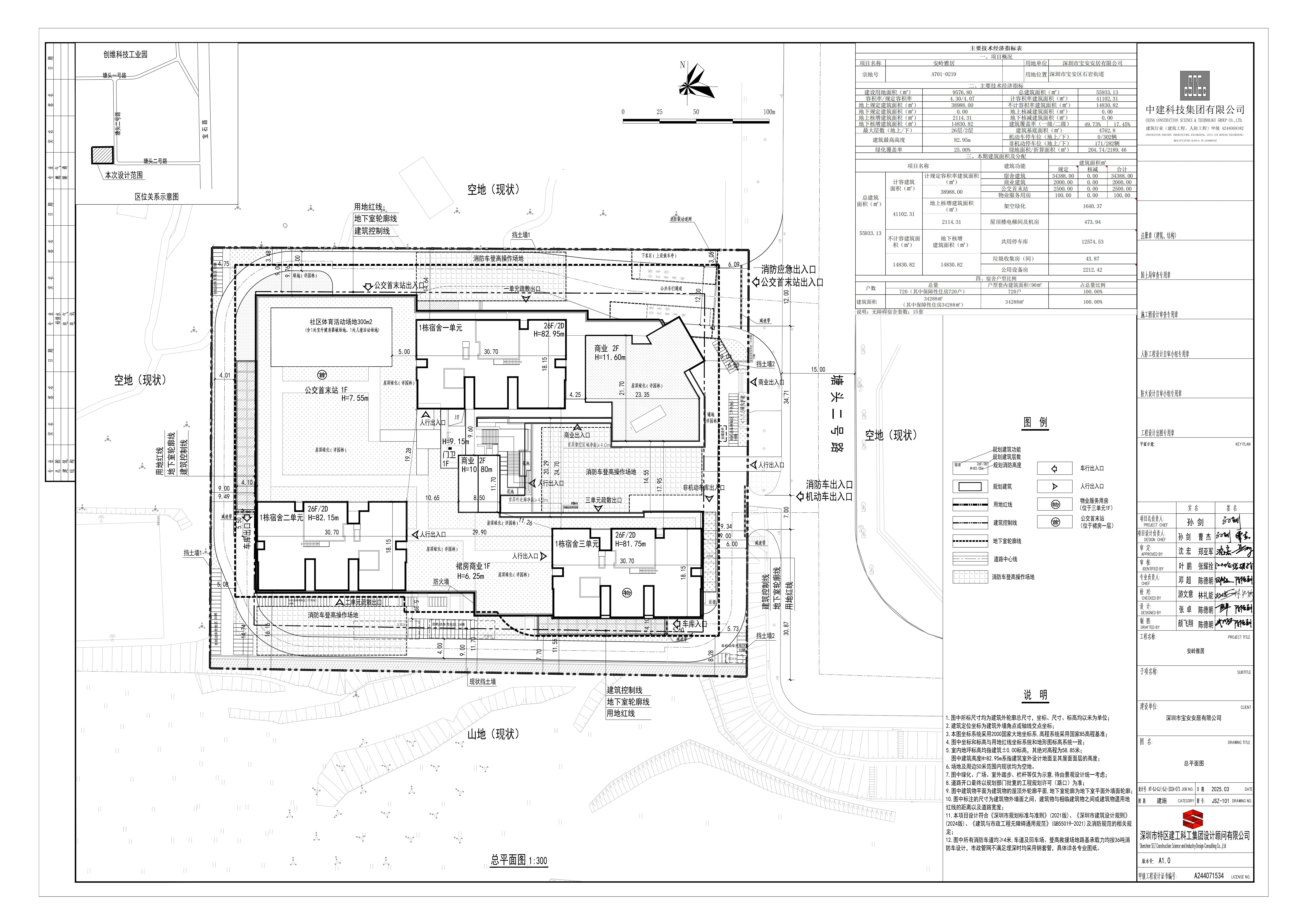
安岭雅居项目位于深圳市宝安区石岩街道,经我局审查,同意核发该项目《建设工程规划许可证》(建字第4403062025GG0039587号)。根据《中华人民共和国城乡规划法》第四十条的规定,现将本次核发的《建设工程规划许可证》及总平面图予以公布。
附件:1.《建设工程规划许可证》
2.总平面图
深圳市规划和自然资源局宝安管理局
2025年4月2日
相关文档:
安岭雅居项目位于深圳市宝安区石岩街道,经我局审查,同意核发该项目《建设工程规划许可证》(建字第4403062025GG0039587号)。根据《中华人民共和国城乡规划法》第四十条的规定,现将本次核发的《建设工程规划许可证》及总平面图予以公布。
附件:1.《建设工程规划许可证》
2.总平面图
深圳市规划和自然资源局宝安管理局
2025年4月2日
相关文档: