当前位置: 宝安管理局 > 公告公示

深圳市规划和自然资源局宝安管理局关于中集天达工业园(宗地号:A222-0291)项目总平面图修改公示的通告

日期: 2022-09-15    来源:

 

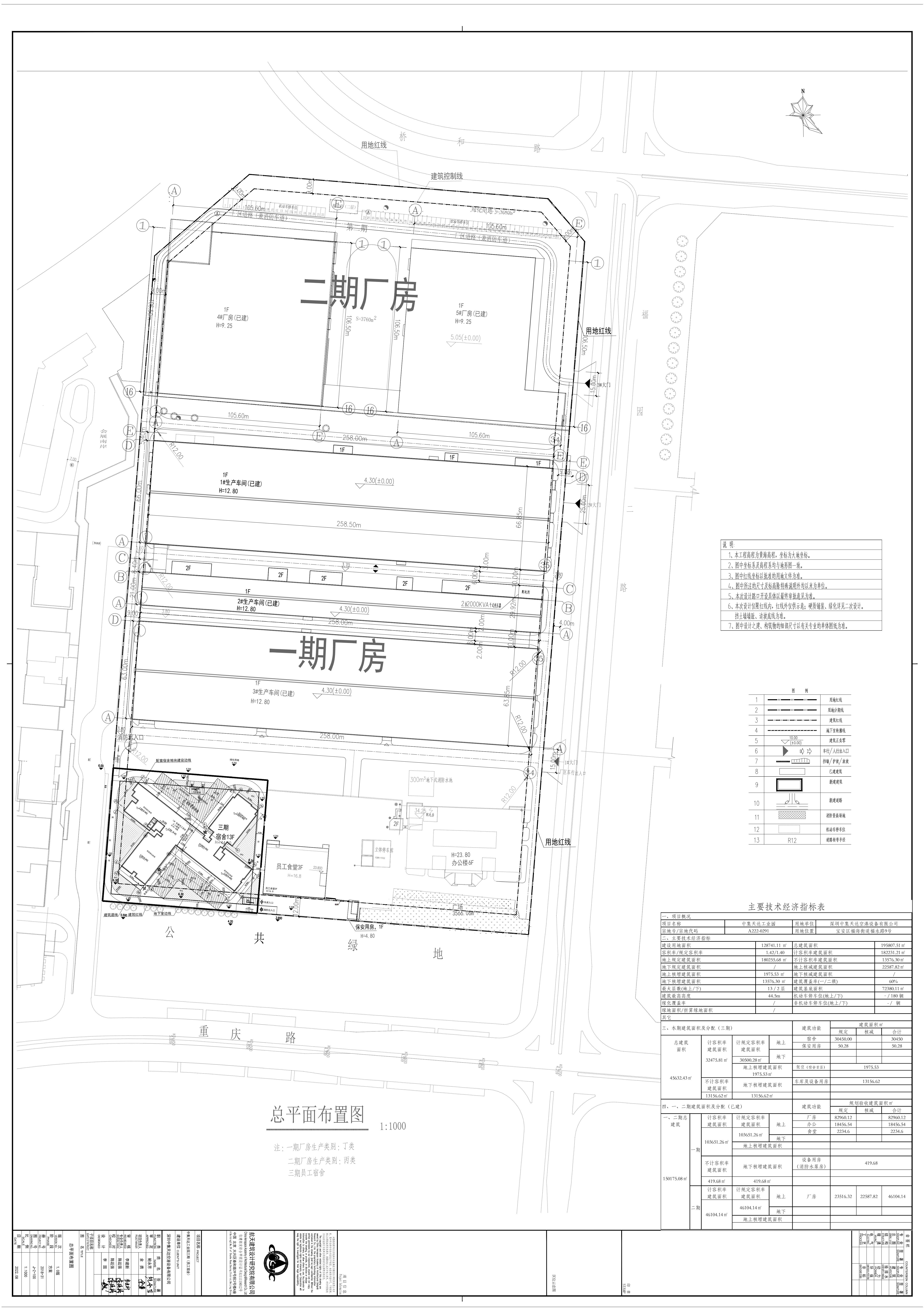
  深圳中集天达空港设备有限公司的“中集天达工业园”项目(宗地号:“A222-0291)位于福海街道福园二路和重庆路交汇处。现用地单位根据调整后的合同以及《建设用地规划许可证》来文申请总平面图修改,主要修改内容如下:

  一、项目宗地号由“A222-0248”调整为“A222-0291”。

  二、总用地面积由“132221.15”平方米调整为“128741.11”平方米。

  三、4#、5#厂房建筑轮廓调整。

  四、新增项目三期1栋员工宿舍和1栋保安用房建设内容,屋顶总平面布置图主要技术经济指标表相关数据相应调整。

  经审查,修改后符合规划要求。

  根据《中华人民共和国城乡规划法》的有关规定,现对该项目总平面图的修改予以公示(修改具体内容到以下网站查询),公示期10个工作日(2022年9月15日至2022年9月28日)。在公示期内,如对该项目的总平面图有意见和建议,请使用真实姓名及联系方式与深圳市规划和自然资源局宝安管理局联系。

  深圳市规划和自然资源局(http://pnr.sz.gov.cn)

  深圳市规划和自然资源局宝安管理局(http://pnr.sz.gov.cn/ba/)

  联系人:王工,联系电话:27807430,传真:27802564

  附件:项目总平面图

市规划和自然资源局宝安管理局

2022年9月14日

相关文档:

附件:项目总平面图.jpg


分享到:
 --