深圳市规划和自然资源局宝安管理局关于公布检测科技大厦项目《建设工程规划许可证》及总平面图的通告
日期: 2025-11-15 来源:
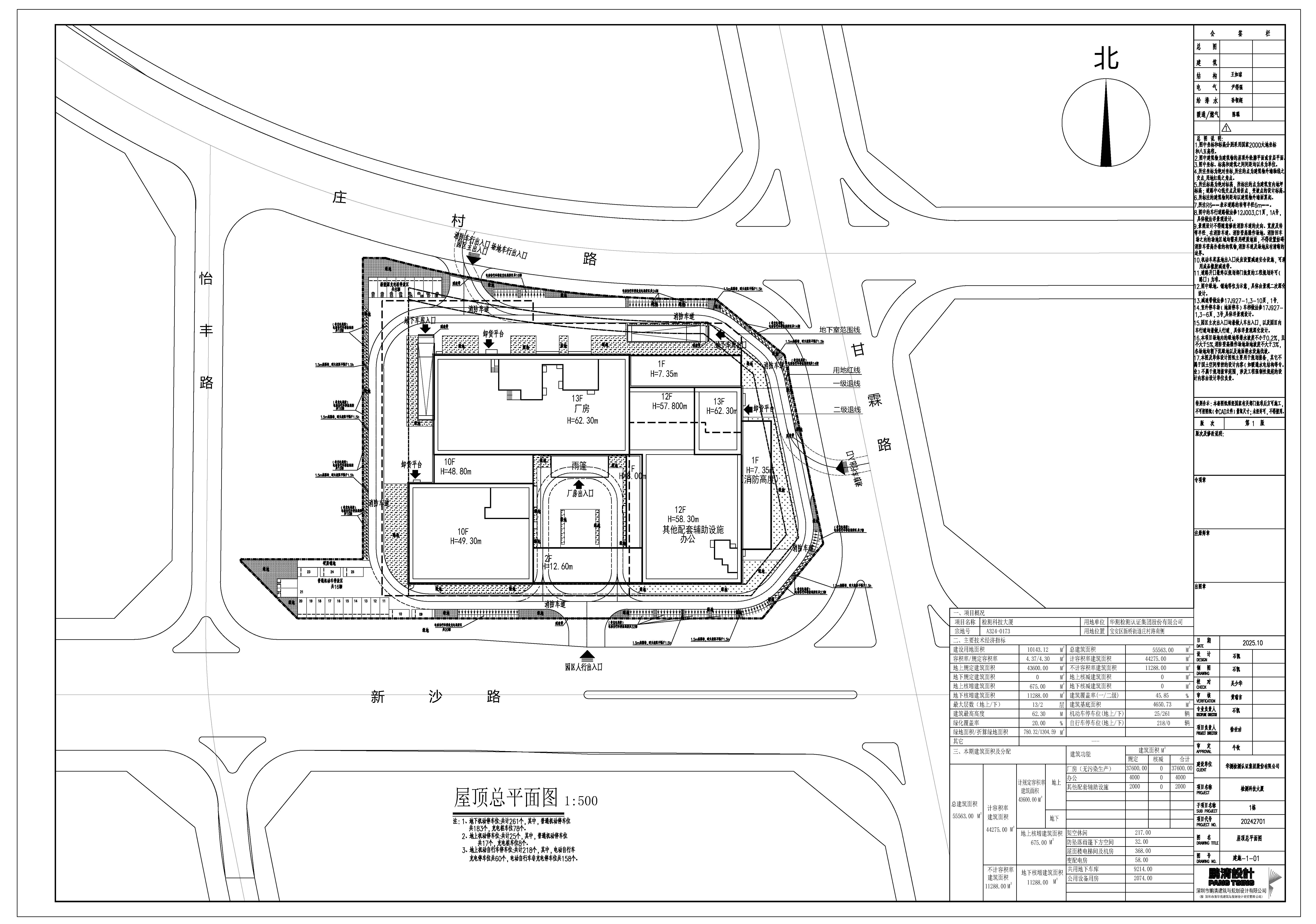
根据《中华人民共和国城乡规划法》第四十条的规定,我局对检测科技大厦项目的《建设工程规划许可证》及总平面图予以公布,具体内容详见附件。
附件:1.《建设工程规划许可证》
2. 总平面图
深圳市规划和自然资源局宝安管理局
2025年11月13日
相关文档:
根据《中华人民共和国城乡规划法》第四十条的规定,我局对检测科技大厦项目的《建设工程规划许可证》及总平面图予以公布,具体内容详见附件。
附件:1.《建设工程规划许可证》
2. 总平面图
深圳市规划和自然资源局宝安管理局
2025年11月13日
相关文档: