当前位置: 宝安管理局 > 通知公告

深圳市规划和自然资源局宝安管理局关于公布深创群大厦项目建设工程规划许可证及总平面图的通告

日期: 2024-09-03    来源:

 

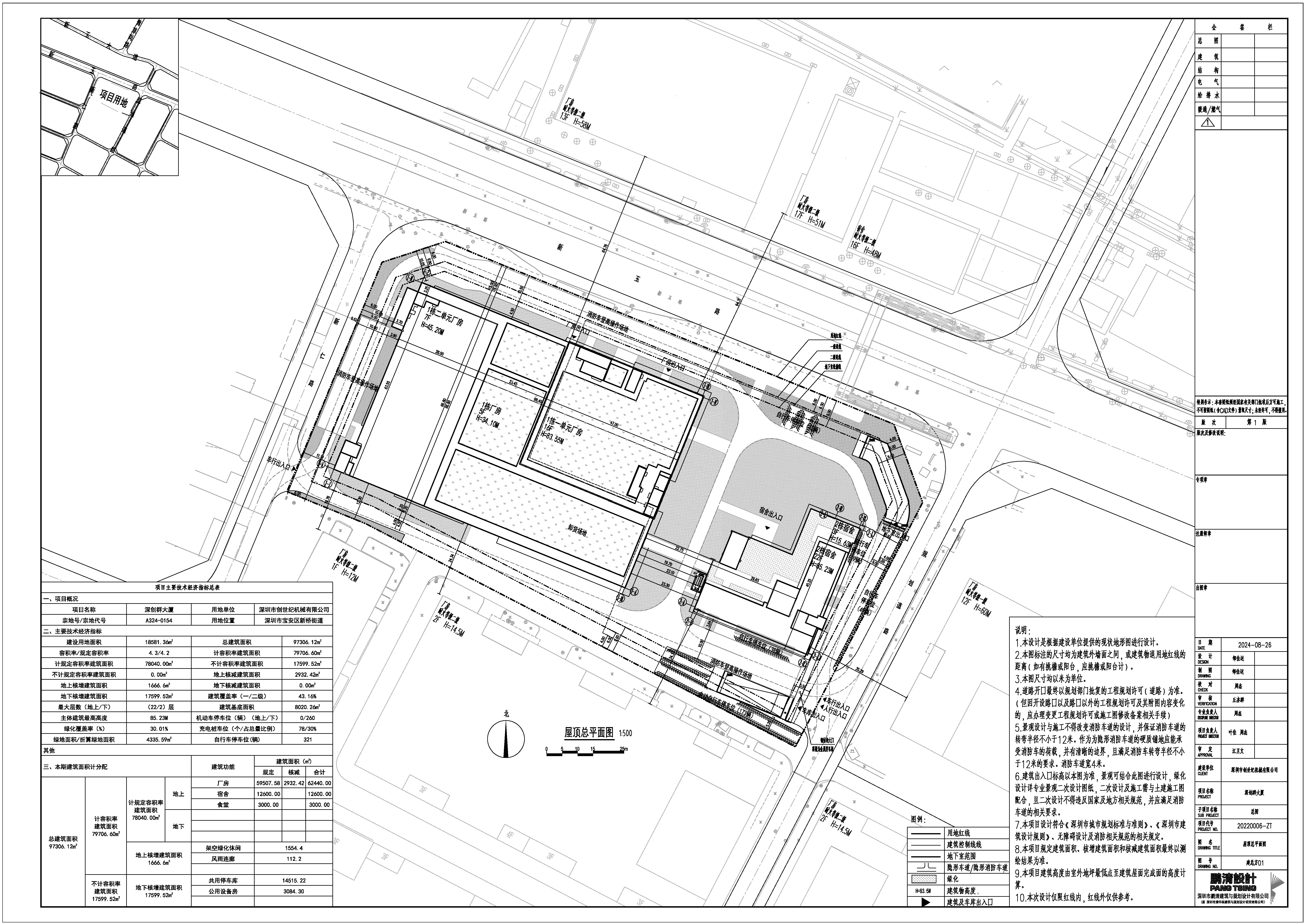
  深创群大厦项目(宗地号A324-0154)位于新桥街道黄埔社区新玉路南侧。经审查,我局同意核发该项目的《建设工程规划许可证》。

  根据《中华人民共和国城乡规划法》第四十条规定,现将本次核发的《建设工程规划许可证》及总平面图予以公布。

  附件:1.《建设工程规划许可证》(建字第4403062024GG0205418号)

  2.总平面图

  深圳市规划和自然资源局宝安管理局

  2024年8月30日

相关文档:

附件1:《建设工程规划许可证》(建字第4403062024GG0205418号).pdf

附件2:总平面图.jpg


分享到:
 --